Projet de construction d'une maison 95 m² avec terrain à MONTEAUX (41)
Modèle présenté
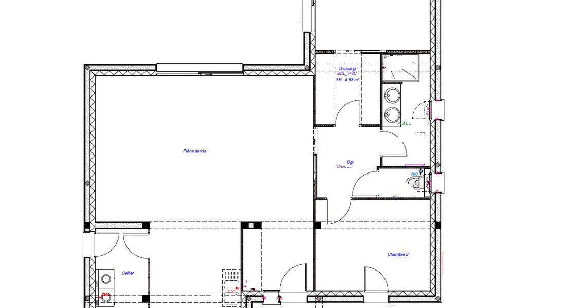
- Nom : CA-2CH95
- Surface : 95 m2
- Nb pièces : 3 pièces
- Nb chambres 2 chambres
Résumé terrain
- 41150 MONTEAUX
LOIR-ET-CHER (41) - Surface : 2048 m2
- En lotissement : non
Projet de construction d'une maison 95 m² avec terrain à MONTEAUX (41)
A MONTEAUX sur un terrain de 2048 m², Les Maisons-I Blois vous propose la construction de votre maison neuve d'une surface de 95 m² habitables avec 2 chambres.Cette maison combinant fonctionnalité et modernité bénéficie de prestations Tout Compris avec ses nombreuses finitions et ses accessoires revendus à prix coûtant pour vous permettre d'obtenir le meilleur rapport qualité/prix.
Réalisez et personnalisez l'aménagement intérieur dans votre maison qui inclus :
- Menuiseries aluminium couleur et PVC sur les châssis avec fenêtres oscillo-battantes
- Volets roulants aluminium électriques et centralisés
- Carrelage haut de gamme au choix 80x80 60x60 ou imitation parquet
- Sol rigide spécial plancher chauffant pour les chambres, fourni non posé
- Porte de garage sectionnelle motorisée coloris blanc ou gris anthracite
- Receveur de douche extra plat design 90/120
- Colonne de douche avec ciel de pluie HANS GROHE
- WC suspendu
- Meuble de salle de bain, 2 vasques design, miroir antibuée
- Baignoire avec appuie-tête
- faïence grand format 90/22 inclue dans toutes nos douches jusqu’au plafond,
- Peinture de qualité type cofavelours de chez ZOLPAN fournie pour l'intégralité de la maison
- Système de chauffage avec Pompe à chaleur et plancher chauffant et rafraichissant
- Chemin d'accès et gravillon fin de chantier
- Gouttières aluminium coloris selon normes en vigueur
Votre maison répondra à la nouvelle réglementation de la RE 2020
Contactez votre Responsable de secteur, Dominique DESEUVRE au 06 68 61 57 68 (Maisons i Blois - Agence de Blois). Nous restons à votre disposition pour tout renseignement complémentaire.
Prix avec assurance dommages-ouvrage comprise. Prix hors frais de notaire et taxes, hors VRD, terrain viabilisé, assainissement non compris, VRD non compris, adaptation non comprise, frais de notaire non compris, taxes non comprises, frais divers non compris. Les raccordements / branchements seront chiffrés en fonction des distances et de la configuration du terrain. Terrain sélectionné et vu pour vous sous réserve de disponibilité et au prix indiqué par notre partenaire foncier. Conditions et visuels non contractuels.
Plus d'informations











